Sukses di Project ke 8, Kini Lauching Project Ke 9, Lokasi 5 Menitan Ke Pintu To Jatiasih
Promo Harga 650 Juta
Sudah Free Semua Biaya-biaya
KPR Cukup Booking 2 Juta
Tinggal Tunggu Akad
Skema Pembayaran
Cash Keras
Cash Bertahap 6 Bulan
Spesifikasi
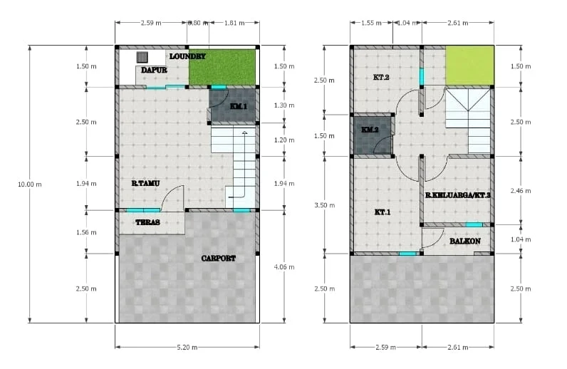
Type : Cluster 12 Unit
Area : Jatimekar Jatiasih Bekasi
Banguanan : 2 Lantai
Luas Tanah Mulai : 56
Luas Bangunan : 60
Kamar Tidur : 2
Kamar Mandi : 2
Ruang Tamu
Dinning Room
Ruang Keluarga
Balkon
Carpot : 1 Mobil
Taman Depan
Listrik : 2.200 Watt
Sumber Air : Sumur Bor
Hadap : Timur & Barat
Legalitas : Shm
Perizinan : Imb Lengkap
Selling Point:
One Gate Sistem
Bebas Banjir
Akses 2 Mobil
5 Menit Tol Jatiasih
Dekat Sekolah Negeri & Swasta
Dekat Rumah Sakit Mitra Keluarga
Dekat Sentral Bisnis & Kuliner Komsen
Dekat Sarana Ibadah
Survey Unit
Hubungi : Firdaus



