BerandaPropertirumahDijualJawa BaratBandungMandalajatipadasuka rumah cluster mahaka bandung terbaru 2lt dkt antapani kampus widyatama
rumah
Diperbarui 8 Desember 2025
padasuka rumah cluster mahaka bandung terbaru 2lt dkt antapani kampus widyatama
jatihandap bandung
Harga
Rp 550 Juta
Harga Jual
Spesifikasi
Jenis Propertirumah
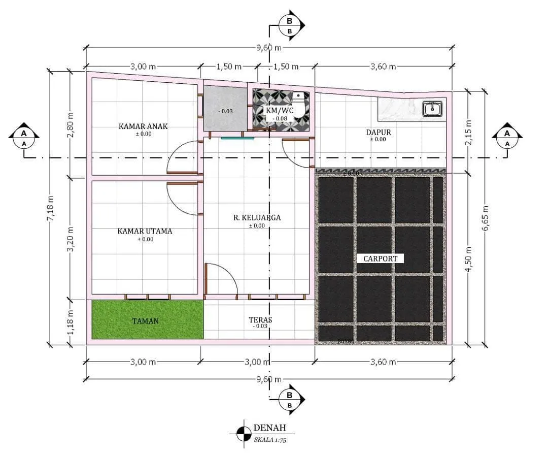
Luas Bangunan50 m²
Luas Tanah76 m²
Kamar Tidur3
Kamar Mandi2
Jumlah Lantai2
Jumlah Garasi2
Daya Listrik2200 Watt
SertifikatSHM
Informasi Properti
Kondisi Properti
Fasilitas Properti
Deskripsi
Adakah masalah dengan properti ini?
Tambah ke Perbandingan
Disclaimer
Pastikan memeriksa properti dan kelengkapan dokumen sebelum melakukan transaksi. Segala jenis transaksi di luar tanggung jawab RumahQu.
Tanyakan Properti Ini




